71 685 ₽/м²
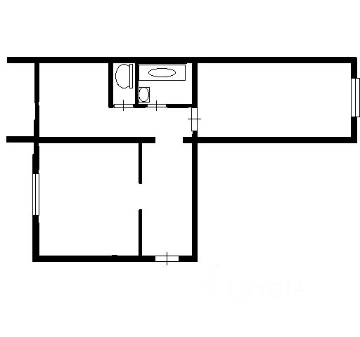
Продаётся просторная трехкомнатная квартира, готовая к заселению. Общая площадь:55,8 кв.м., жилая 37,6 кв.м., кухня 9 кв.м.. Дом расположен в уютном и хорошо обустроенном районе с развитой инфраструктурой. Квартира в хорошем состоянии с косметическим ремонтом. Комнаты смежно-изолированные. Просторная девятиметровая кухня. Балкон застеклён. Санузел раздельный. Ванна - кафель. Замена стояков холодного и горячего водоснабжения. Установлены счетчики на воду. Дополнительно установлены радиаторы отопления. Квартира теплая. В зале два окна благодаря этому в комате больше естественного света. Чистый и отремонтированный подъезд, новый лифт. В подвале дома произведена замена теплообменников и труб холодного водоснабжения. В шаговой доступности вся социальная инфраструктура. Номер объекта в базе (ID) 362361.






























































