56 452 ₽/м²
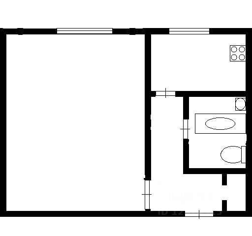
ЦЕНА ниже рынка - ПОД РЕМОНТ Рассмотрим любые формы оплаты: военная ипотека, гражданская ипотека, материнский капитал. Время для звонков и показов: пн. - пятн. 10.00-20.30 сб. воскр. 12.00 - 18.00 Преимущества: - функциональная планировка - кухня в хорошем состоянии - на кухне и в комнате заменены радиаторы - раздельный санузел - нет переплаты за чужой ремонт - вежливые соседи, чистый подъезд - шаговая доступность необходимой инфраструктуры: школа, детский сад , продуктовые магазины, остановка, торговый центр "Авиатор" - год постройки дома 1969 Вид продажи: - Прямая продажа - Документы готовы к сделке "Североморская недвижимость Ваш Дом" — Ваш безопасный проводник на рынке недвижимости с 2017 года. *Член Мурманской и Российской Гильдии Риэлторов профессиональная ответственность застрахована, юридическая гарантия по сделкам- 3 года СРОЧНЫЙ ВЫКУП! НОВОСТРОЙКИ РОССИИ! АРЕНДА! ПРИВАТИЗАЦИЯ! СТРАХОВАНИЕ!ПЕРЕПЛАНИРОВКА! КЛИНИНГ! ОЦЕНКА! ОФОРМЛЕНИЕ ЛИЦЕВЫХ СЧЕТОВ! Звоните прямо сейчас, чтобы записаться на просмотр и узнать подробности! Арт. 126350488 Продается 1-комнатная квартира до 18 млн. рублей в Североморске.





































































