Мы используем куки-файлы. Соглашение об использовании
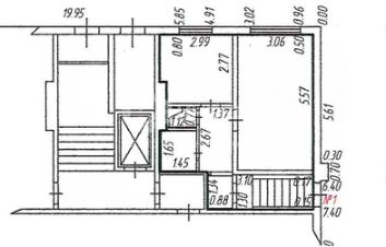
Помещение свободного назначения, 37,1 м²

Продается помещение свободного назначения, 37,1 м²

Площадь37,1 м²
Этаж1 из 9
Арт. 123831016 Помещение свободного назначения с отдельным входом с арендатором (ГАБ). Пешком з минуты от автобусной остановки. Плотный жил. массив. Объект сдан в аренду федеральному арендатору ОЗОН Долгосрочный договор аренды с января 2026г. ПВЗ открыт и показывает отличную динамику по росту ТО. МАП: 55.000 р./мес. ГАП: 660.000 р/год. Пункт расположен на существенном удалении от ближайших точек Озон, что обеспечивает необходимый для стабильной работы товарооборот. Данный объект ГАБ в отличии от инвестиционной квартиры является надежной инвестицией с постоянным ежемесячным арендным потоком, не с требующей внимания собственника. Компания Инвест оказывает полный спектр услуг в сфере коммерческой нежилой недвижимости: Покупка/продажа/выкуп коммерческой недвижимости; Поиск арендаторов под свободные коммерческие помещения; Доверительное управление "под ключ"; Оптимизация арендного потока и расходной части; Создание объектов ГАБ под инвестора, доходность до 30% годовых.
lock

Войдите или зарегистрируйтесь
для просмотра информации

Просматривайте условия сделки и всю информацию об объекте
Сохраняйте фильтры в поиске и не вводите заново
Доступ к избранному с любого устройства
Неограниченное добавление в избранное
Позвоните автору
Вам ответят на все вопросы
Остались вопросы по объявлению?
Позвоните владельцу объявления и уточните необходимую информацию.
  • Инфраструктура
  • Похожие рядом
  • Общая площадь37,1 м²
Центральное отопление
Помощь надёжных риелторов
Риелтор партнёр Циан поможет купить или продать любую недвижимость
4 970 000 ₽
66 538 $
56 740
Цена за метр
133 963 ₽
Налог
УСН
Агентство недвижимости
Суперагент